Habitatge Unifamiliar
-
Palau Sacosta (Girona)
SuperfĆcie: 375 m²
Projecte:Ā Privat
PEM:Ā 425.000 ā¬
Tipus: Obra nova
Any:Ā 2023


La urbanització on sāatansa lāhabitatge Ć©s una zona urbana que queda elevada respecte el seu entorn mĆ©s immediat. Aquesta caracterĆstica Ć©s fruĆÆt del creixement dels anys ā80 per marxar de lāinterior de Girona. Les parcel.les són de tamany mig-gran, per habitatges unifamiliar o bĆ© per promocions adossades.
De 150 a 200m2 els habitatges es presenten compactes amb poca relació amb lāexterior.

Amb poca permeabilitat, es vials es converteixen amb corredors per trĆ nsit rodat i peatonals. La nostra voluntat Ć©s crear interferĆØncies entre lāhabitatge i lāentorn immediat sense perdre lāaspecte compacte de ciutat compacta. Lāedificació es divideix en 5 zones diferenciades: un accĆ©s ampli i generós apropiant-se dāuna part del jardĆ condueix a una zona de dia amb sala i cuina. La zona de garatge divideix i fa de coixĆ entre lāaccĆ©s i les parts mĆ©s internes dels habitatges.

A la part posterior apareix les zones de nit, amb obertures i patis petis per lāentrada de la llum exterior. L'Ćŗltima part esdevĆ© la part superior de lāhabitatge i conclou tota lāedificació amb un petit volum.
Les faƧanes són senzilles i ordenades. Les finestres generoses, els petits patis i els porxos exteriors van creant les diferents obertures i configurant la resta de lāedificació.

Reforma dāun garatge per canvi dāĆŗs
-
Vilablareix (Girona)
SuperfĆcie: 74 m²
Projecte:Ā Privat
PEM:Ā 72.500 ā¬
Tipus: Ampliació ā reforma
Any:Ā 2023


Amb posició entremitgeres es presenta lāedificació amb una planta baixa per garatge i una planta alta per lāhabitatge. El garatge resta ubicat en una zona propera al centre, molt aprop de la intervenció efectuada al 2020. La intervenció es basarĆ en el protagonisme dāun cotxe. LāaccĆ©s a lāhabitatge sāefectuarĆ per un lateral de lāedificació. Aquest gest permetrĆ aparca el cotxe en una espai residual per lāaccĆ©s i mĆ©s central per els visitants.

A lāinterior i desprĆ©s de lāaccĆØs hom arriba a lāespai central. En aquest espai, la cuina oberta, un espai dāilla per menjar i un espai per decansar. Al fons, una xemeneia frontal serĆ col.locada axialment i competirĆ amb el cotxe per el protagonisme. En la part dreta de lāespai central es col.locarĆ una parament vertical de vidre. La seva funció serĆ gaudir atravĆ©s del cotxe. En tot moment des del menjador-estar es tindrĆ visió del cotxe.
Un fals sostre de lames i una ilĀ·luminació tĆØcnica a base de focus i carrils electrificats unificaran les diferents zones. El paviment serĆ continu en la zona del garatge per tal de facilitar la neteja i la durabilitat.Ā La relació amb la part exterior de jardĆ es farĆ a travĆ©s dāunes obertures generoses al costat de la sala-estar.

Rehabilitació de mas
-
Corçà (Girona)
SuperfĆcie: 298 m²
Projecte:Ā Privat
PEM:Ā 325.000 ā¬
Tipus: Ampliació ā reforma
Any:Ā 2022


Els terme municipal de CorƧa es troba al comenƧament de la plana que separa el prelitoral de la costa del Baix EmpordĆ del comenƧament de les Guillaries. De base agrĆcola i ramadera la seva activitat económica es complenta al llarg dels anys amb bòviles cerĆ miques. En el turó del Canyet sobresurt una masia, que sense ser en el seu origen un mas complert, esdevĆ© important per la seva regularització.

El conjunt edificatori tindrĆ 3 cossos formant un perĆmetre quadrat. Lāedifici de mĆ©s al nord, la masia es voldrĆ recuperar el seu valor protagonista. El porxo de la part central es recuperarĆ com a sala de jocs o sala familiar. El tercer volum serĆ una reconstrucció dāun porxo existent.
Les faƧanes són eclĆØctiques tant en els materials com en les obertures. Les diferents ampliacions i reformes d'anys anteriors faran aparĆØixer diferents materials.Ā
En la proposta serƔ un argument per intervenir per alƧar aquest comportament eclƩctic o bƩ per mamllevar-lo.
La posición privilegiada de la masia en la part més alta del turó del Canyet fa que calgui controlar tot el seu entorn més proper per tal que paisatgisticament tingui el menor impacte possible.
Les faƧanes són senzilles i ordenades. Les finestres generoses, els petits patis i els porxos exteriors van creant les diferents obertures i configurant la resta de lāedificació.

50 habitatges en filera
-
FortiĆ (Girona)
SuperfĆcie: 145 m²
Projecte:Ā Privat
PEM:Ā 4.000.000 ā¬
Tipus: Obra nova
Any:Ā 2021


Sāestableix una divisió de tot el sector en 3 franges diferenciades. Una primera zona dāhabitatges unifamiliar aparellades on sāalinean al nou vial deixant la zona de lleure a la seva part posterior. La segona part queda ocupada per habitatges individuals en filera amb menys presencia al vial ja que la seva faƧana queda enretirada. La cessió de terrenys a lāAjuntament es realitza per la part nord i amb vinculació a altres edificis de lāAjuntament existents.
Tots els habitatges disposen dāuna planta rectangular dividida entre la zona edificable i el jardĆ. Per tal de separar els diferents habitatges sāha colĀ·locat una filera dāarbusts baixos, dāaquests manera es pot identificar amb claritat el lĆmit de cada finca i alhora al no tallar directament la visibilitat creem una comunitat mĆ©s unida.
Els diferents habitatges segueixen una simetria axial dos a dos. Cadascun dels habitatges disposen de dos nivells amb grans finestres amb lames que permeten lāentrada de llum a lāinterior creant un espai mĆ©s acollidor. A la planta baixa hi ha un gran vidre que dona accĆ©s al pati i permet lāentrada de llum al menjador.

Rehabilitació dāun mas
-
Vilanant (Girona)
SuperfĆcie: 125 m²
Projecte:Ā Privat
PEM:Ā 98.000 ā¬
Tipus: Ampliació ā reforma
Any:Ā 2020


Enmig dāun bosc, abraƧat per el riu Manol apareix una masia. Aquesta resta queda posicionada en forma paral.lepĆpde, on un dels seus costats Ć©s col.lindant al riu Manol i elevada respecte aquest. Una de les faƧanes fa de lĆmit amb lāexterior atravĆ©s de petites obertures i els altres dos costats són murs alts de tancament. Per tant, podem dir que la masia resta fortificada. Les faƧanes de lāinterior del pati són neoclĆ ssiques de mitjans del XIX i la disposició interior de les peces de la mateixa ĆØpoca.
No trobem exemples de posicionament estratĆØgic per part de masies atĆ©s, majoritĆ riament eren de carĆ cter rural i per tant amb una relació amb lāexterior evident. En alguns casos la defensa de la masia es veia configurada per una torre petita annexada al mateixa teulat. En aquest cas, sigui per defensar-se de les Guerres Carlistes o simplement com a protecció per els bandolers en una zona poc poblada lāedificació tĆ© un cĆ racter dāautodefensa evident.
En la proposta es conserva al mĆ xim lāestructura i la faƧana de lāantiga masia i sāha rehabilitat gran part de lāinterior conservant alguns trets distintius.
Es recuperen espais nous conservant al mateix temps vestigis originals del mas, com parts del sostre i de la decoració original.

Reforma dāun habitatge unifamiliar
-
Vilablareix (Girona)
SuperfĆcie: 182 m²
Projecte:Ā Privat
PEM:Ā 102.000 ā¬
Tipus: Ampliació ā reforma
Any:Ā 2020


Habitatge ubicat en lāeixample del municipi amb posició entremitgeres. Dins una illa dāhabitatges amb gran densitat sāorienta est-oest. Edificació composta de planta baixa amb taller/local comercial i planta pis amb una terrassa posterior generosa.Ā Ā Ā Ā Ā Ā Ā Ā Ā Ā Ā Ā Ā Ā Ā Ā Ā Ā Ā Ā Ā Ā Ā Ā Ā Ā Ā Ā Ā Ā Ā Ā Ā Ā Ā Ā Ā Ā
La reforma de lāhabitatge recau en una nova distribució i una major funcionalitat dāacord amb les noves prescripcions del propietaris. Un accĆ©s mĆ©s ampli i directe a la sala dāestar serĆ una de les premisses. Una cuina oberta aprofitant una major il.luminació unirĆ lāespai cuina-sala. La resta de les peces es conformaran atravĆ©s de nous acabats i peces de mobiliari de fusta.

En el mig de la intervenció apareixerĆ la gran protagonista. Una accĆ©s a la planta superior, tambĆ© de fusta i com una continuĆÆtat de les parets i paviments. Aquest material Ć©s un gran aĆÆllant,Ā a la vegada que la seva textura i tonalitats interfereixen en ella una gran atracció. De tonalitat clara, esdevindrĆ molt important per tal d`assolir una gran sensació dāamplitud. La disposició de la il.luminació en zones estratĆØgiques ajudaran a conformar espais mĆ©s autònoms i particulars.Ā Ā

Ampliació d’habitatge unifamiliar
-
Meis (Pontevedra)
SuperfĆcie: 65 m²
Projecte:Ā Privat
PEM:Ā 110.000 ā¬
Tipus: Ampliació ā reforma
Any:Ā 2020


El projecte consisteix en lāampliació dāun habitatge unifamiliar aĆÆllat dāuna superfĆcie aproximada de 300 m2.
Lāhabitatge actual Ć©s dāarquitectura tradicional de murs de cĆ rrega de pedra calcĆ ria massissa de 40cm de gruix. La seva coberta Ć©s presenta inclinada al 35%.
Lāampliació en qüestió sorgeix de la necessitat dāaugmentar lāespai de la sala dāestar, entĆØs com un annexada, dāuns 40-50 m2, tancada amb una faƧana vidriada i una coberta plana enjardinada per tal dāacomplir amb els requeriments normatius.
La nova geometria que genera aquest nou espai configura una nova entrada, elevada amb respecte de la cota de carrer, queda definida per una piscina que nāemmarca un dels laterals.

El repte del projecte sāemplaƧa fusionar els llenguatges que generen dāuna banda un espai de carĆ cter lleuger i paralĀ·lelepĆpede i dāaltra banda una arquitectura ja existent que sāarrela a la tradició constructiva del territori Ćŗnicament a travĆ©s del seu material de faƧana.
El projecte posa en crisis els valors tradicionals i a la normativa dāedificació del municipis rurals Ćŗnicament avalada per valors materials.

Reforma d’habitatge
-
Salt (Girona)
SuperfĆcie: 98 m²
Projecte:Ā Privat
PEM:Ā 56.500 ā¬
Tipus: Ampliació ā reforma
Any:Ā 2019


Ubicat en la frontera entre lāeixample i el nucli antic de Salt, molt aprop de lāEsglĆØsia de Sant Cugat lāedifici sāubica en xamfrĆ amb dos habitatges per replĆ . Edifici construĆÆt a lāĆŗltim quart del segle passat amb estructura de bigues de ferro sobre mur de cĆ rrega.
Lāaspecte a destacar Ć©s la cuina dels habitatges que es disposa en la part central dels habitatges i sāaprofita per fer una obertura generosa per donar lluminositat i importĆ ncia al mateix temps a la peƧa principial de lāhabitatge. Sāaprofita al mĆ xim la superfĆcie disponible on la posició i el disseny dels mobles configura lāespai en forma de L. Unificació de materials i tonalitats faran que la intervenció sigui unitĆ ria.

Reforma dāun habitatge unifamiliar
-
Llampaies (Girona)
SuperfĆcie: 366 m²
Projecte:Ā Privat
PEM:Ā 345.000 ā¬
Tipus: Ampliació ā reforma
Any:Ā 2018


El nucli de població de Llampaies (conjuntament amb el Saus i Camallera formen un sol municipi) queda situat en la plana que apareix entre el riu FluviĆ i el Ter. El seu nucli antic es datat del segle X i les edificacions resten molt ben conservades. Entre masies amb finques de conreu i edificacions entremitgeres dāorigen agrari el projecte troba el llenguatge per intervenir-hi sutilment.

Lāhabitatge estĆ distribuĆÆt en planta baixa, planta pis i planta sotacoberta, ocupant la totalitat de la parcelĀ·la. Una caracterĆstica intrĆnseca del projecte consisteix en la conservació de la tradició arquitectònica tant en lāinterior com en lāexterior, mantenint inclĆŗs lāarcada que se situa a la planta baixa.

La geometria de lāedificació Ć©s forƧa irregular i pròpia de lāĆØpoca de construcció, generant aixĆ un repte en la distribució i en lāentrada de llum, la qual es resol mitjanƧant les finestres existents i les que sāhi afegeixen, que conserven amb el llenguatge arquitectònic de lāhabitatge. A la part posterior, sāhi genera un espai semiexterior de pati. Amb vegetació, al qual donen les balconades, les plantes superiors es mostraran retranquejades per gaudir del pati i de la llum cada cop que sāafageix una planta.

Reforma dāhabitatge
-
TaialĆ (Girona)
SuperfĆcie: 125 m²
Projecte:Ā Privat
PEM:Ā 92.000 ā¬
Tipus: Ampliació ā reforma
Any:Ā 2018


El barri de Domeny-TaialĆ segurament Ć©s un dels barris mĆ©s lluny de Girona, però amb mĆ©s bona connexió. Per aquest motiu, en els Ćŗltims anys sāha desenvolupat molts planejaments amb intencions immobiliĆ ries per fer crĆ©ixer el barri. Igualment com en anys enrere quan els habitatges existents, la gran majoria de lāĆŗltim quart del segle passat, es construiren arrant del boom de la industrialització i la migració de families de fora de Catalunya.
La proposta per canvi dāus del local exsitent a un habitatge es desarollava amb una precisa clara dāespais servis i espais servidors. Per tant, sāagruparan en faƧana els dormitoris com espais servits i la resta de peces, seran espais servidors. Entremig sāubicarĆ una sala menjador cuina que farĆ nexe dāĆŗnio.Sāaprofita tota les intervencions en la faƧana per realitzar una aplicació dāaĆÆllament tĆØrmic per exterior, aixĆ com el canvi de llums de la terrassa.
Comfortable espai de treball en la cuina amb estanteries ben integrades i zona de treball amb accés fà cil de connexió. Es situaran en eix central de la sala. Ambdòs costats, els espais servits i annexos.

Reforma i ampliació d’habitatge
-
L'Escala (Girona)
SuperfĆcie: 165 m²
Projecte:Ā Privat
PEM:Ā 168.000 ā¬
Tipus: Ampliació ā reforma
Any:Ā 2017


Lāhabitatge estĆ situat a primera lĆnia de mar a la platja de Riells. Amb un entorn envejable, entre la costa i els pinars de lāEscala apareix un conjunt dāedificacions existents des del desenvolupament turĆstic dels anys ā70 de la Costa Brava. Lāespeculació urbanĆstica fa que moltes dāelles estiguin mancades dāun manteniment continu i la seva presencia precaritza lāentorn.
La nostre voluntat ha estat la de crear un espai on prevalguĆ©s lāimpacte de lāespai exterior. Amb una limitació dāedificació sāintentaĀ dissenyar una proposta senzilla i ordenada, amb grans finestrals que permeten molta entrada de llum a lāinterior de lāhabitatge i gaudir de lāextensa terrassa.
La zona de la cuina tindrĆ vistes al mar on es confon amb lāĆ mplia zona dāestar. Per una limitació dāobertures per regulació de normativa cal pensar en altres mecanismes. Patis interiors per on ventilar i al mateix temps donar llum a les peces annexes són les solucions.

Reforma d’habitatge
-
L'Escala (Girona)
SuperfĆcie: 110 m²
Projecte:Ā Privat
PEM:Ā 89.350 ā¬
Tipus: Ampliació ā reforma
Any:Ā 2016


El nucli antic de lāEscala es distribueix seguint una trama de carrers ortogonals i perpendiculars en la direcció de la costa com exemple notori de poble pesquer que Ć©s. Amb parcel.les de petita dimensió i carrers estrets sāha pogut mantenir al llarg del temps.
Els habitatges existents són construccions de pedra, dāuna crugia la gran majoria i amb un pati o sortida posterior.

La reforma tenia que proposar una ampliació per la part posterior del pati i una millora en la eficiĆØncia energĆØtica. Lāhabitatge, de planta baixa i primera, sāintervĆ© en la faƧana creant unes obertures noves i en lāinterior per crear una distribució mĆ©s funcional degut al poc espai existent. La intervenció en la coberta serĆ amb una estructura de fusta nova que donarĆ la solució al remat de faƧana amb un aplacat de taulons.

Habitatge
-
Blanes (Girona)
SuperfĆcie: 146 m²
Projecte:Ā Privat
PEM:Ā 198.000 ā¬
Tipus: Ampliació ā reforma
Any:Ā 2015


Rehabilitació dāhabitatge al municipi costaner de Blanes, Girona, situat a lāalt dāun turó integrant lāhabitatge amb la natura fruĆÆt dāuna extensa rehabilitació.
Lāhabitatge contĆ© una planta principal i una segona mĆ©s petita, essent construĆÆt utilitzant la inclinació de la muntanya.Ā

EstĆ fet principalment de pedra amb una coberta inclinada i varies finestres que permeten lāentrada de llum. Al lateral hi ha una terrassa amb piscina.
Trobem la cuina amb una paret de fusta i zona de treball combinant la fusta sobre blanc.Ā EstanƧa amplia de treball i agradable, amb vistes a l’exterior per obertura deĀ paret amb vidre.
Menjador amb paret de pedra, coberta inclinada i finestral afavorint vistes i ilĀ·luminació a lāestanƧa. Mobles baixos integrats en lāespai que afavoreixen les vistes a lāexterior.
Petit bany amb totes les comoditats. Plat de dutxa a un petit nivell mĆ©s baix que el lavabo, doble moble de fusta amb mirall. Ben il.luminat grĆ cies a dos finestres, una de quadrada i lāaltre allargada. Tots els elements de fusta són amb tons marrons clars donant unitat a la proposta.

Rehabilitació d’habitatge
-
Darnius (Girona)
SuperfĆcie: 268 m²
Projecte:Ā Privat
PEM:Ā 156.000 ā¬
Tipus: Ampliació ā reforma
Any:Ā 2014


El municipi de Darnius, com altres municipi, es va desarollar sobre les traces dels camins rurals. El seu carrer Major, on sāhi va desenvolupar tota lāactivitat, fou important atĆ©s era del Ćŗltims indrets abans de traspassar la frontera. Per tant, les seves finques i cases de pobles (entremitgeres) eren de gran vĆ lua. Entremitgeres i de planta baixa amb dues plantes pis es presentaven alieneades al carrer. A la part posterior apareixien els horts i les porxos per les feines del camp o agrĆcoles.
La nostre proposta rehabilita una finca de planta baixa i planta primera. De doble crugia i amb estructura de volta de mocador al primer sostre. A la planta primera les estances venen distribuĆÆdes per les parets de carga de pedra cada 5m de crugia. La planta dāaccĆ©s es disposa en dos nivells possibilitant de desdoblar-la i col.locant les peces de dia en el semi-soterrani. Sala, cuina i estar sāuneixen amb una Ćŗnica sala. Al fons es reforma un espai per fer un celler annexat a aquesta sala i gaudir de tot el conjunt.
La resta de planta baixa i la planta primera es destinaran a zones de nit amb peces de dormitori i bany.
La faƧana es distribuirĆ amb predomini del massĆs respecte el buit amb finestres que donint importĆ ncia al conjunt i a lāespai interior.

Ampliació i reforma d’habitatge
-
Banyoles (Girona)
SuperfĆcie: 458 m²
Projecte:Ā Privat
PEM:Ā 389.000 ā¬
Tipus: Ampliació ā reforma
Any:Ā 2014


A conseqüència de lāestany, la població de Banyoles ha tingut un altre focus de relació amb la ciutat. El primer, el seu Nucli Antic ha sabut rehabilitar-lo tot i les debilitats de qualsevol barri vell. El segon, lāestany ha contribuĆÆt a sostenir el turisme local que tothom anhela i que en molts pobles els falta. A lāentorn mĆ©s proper a lāestany i durant els anys ā70 i ā80 del segle passat el desenvolupament econòmic va fomentar lāaparició dāurbanitzacions difuses.Ā
Algunes sāhan consolidat i sāhan anexat a la trama urbana, altres han quedat establert en un extraradi dispers. Les finques a prop de lāestany són dāun tamany mig o mig-gran i per tant el tamany dels habitatges no són petits.
La proposta ha de solucionar una ampliació de programa en planta baixa i tota la relació amb el perĆmetre de la finca.
El volum del garatge nou sāincorporarĆ a lāedificació existent i per la part posterior el seu rĆ fec envoltarĆ lāedificació existent. Per la part davantera, uns grans finestrals incorporarant un filtre per graduar la incidĆØncia solar i les vistes. La relació amb lāexterior es realitzarĆ atravĆ©s dāuna generosa terrassa que ordenarĆ amb el seu perĆmetre lāentorn proper.
La unificació de materials farà possible la seva lectura en un sol conjunt i sense particularitats.

Ampliació i reforma d’habitatge
-
Loreto (Girona)
SuperfĆcie: 325 m²
Projecte:Ā Privat
PEM:Ā 328.000 ā¬
Tipus: Ampliació ā reforma
Any:Ā 2013


El carrer de la Rutlla de Girona,com el seu nom indica, Ć©s una dels vials de sortida del centre de la ciutat cap a les zones de lāexterior o limĆtrofes. Des del creixament als anys ā60-ā70 del eixamples urbans, aquest vial ha esdevingut important per la seva relació directe amb el centre. Per tant el creixament de Girona, per la seva part sud ha anat lligat al desenvolupament dāaquest carrer i als seus adjacents.

En un dels seus vials col.lindants apariexen unes finques estretes, entre 5 i 7m dāamplada, les quals disposaven en la seva part posterior una zona de lleure orientada a sud. Els habitatges eren dāuna sola crugia, entremitgeres i de 10 a 12m de fons.
Lāhabitatge existent de planta baixa i planta pis, combina lāestil minimalista a la seva faƧana posterior, combinant els colors blanc i negre i conformada a base de lames horitzontals que deixen travessar la llum, a la vegada que realitzen una protecció solar a la seva cara sud. Al seu interior, la tradicionalitat de la volta cerĆ mica sāespressa com a contrapunt.

La faƧana a carrer, combina la modernitat de la fusteria dāentrada dissenyada a partir de mòduls de fusta abatibles de color blanc amb una faƧana dāobra cerĆ mica vista tradicional de color blanc que sāalƧa fins a la nova coberta plana, on hi apareixen dues obertures existents amb uns brancals i uns ampits que les emmarquen amb timidesa.
A la part posterior de lāhabitatge, sāhi genera un espai exterior que tĆ© una forma allargada. Al fons del pati, rep protagonisme un arbre que queda colĀ·locat ben bĆ© al mig de lāamplada del pati seguint la pauta de la resta de jardins existents amb arbrats.


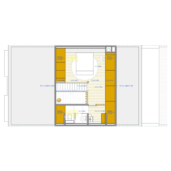
Rehabilitació dāedifici catalogat entremitgeres
-
Figueres (Girona)
SuperfĆcie: 253 m²
Projecte:Ā Privat
PEM:Ā 298.000 ā¬
Tipus: Ampliació ā reforma
Any:Ā 2012


Edifici noucentista entremitgeres al nucli històric de Figueres en una zona on les edificacions amb pati posterior i amb crugiesĀ de mĆnimes de 5m es presenten en carrers de 6m dāamplada. Lāedificació actual consta de planta baixa i dos plantes pisos amb una coberta plana a la catalana (i badalot dāescala) com a tancament de lāenvolvent. La proposta intenta resoldre la part interior fent una rehabilitació dāespais i funcions aixĆ com una ampliació amb una planta mĆ©s.Ā

Lāampliació es realitza cobrint la terrassa existent amb una coberta terminal.. Es crearĆ un terrassa per la part davantera de la Ćŗltima planta per enretirar el cos de nova construcció.
Les plantes es distribuiran per les seves funcions. La planta baixa i dāaccĆ©s es destinarĆ a accĆ©s i espais annexos. La planta primera es distribuiran els dormitoris,banys i una sala polivalent. La sala, ,menjador i cuina quedaran a la planta segona.Ā
Lāampliació a la planta tercera serĆ per el dormitori principal, vestidor, bany i estudi. El pati posterior i la terrassa davantera de la planta tercera seran els punts dāunió amb el seu entorn mĆ©s inmediat.
La proposta serĆ respectuosa amb lāestat actual de la finca i sāequilibraran amb tons neutres. Lāescala, paviments, superficies de pedra i sostres seran objecte dāuna restauració acurada.






Reforma d’habitatge a Riells
-
L'Escala (Girona)
SuperfĆcie: 223 m²
Projecte:Ā Privat
PEM:Ā 145.000 ā¬
Tipus: Ampliació ā reforma
Any:Ā 2009


El turisme ha sigut el gran avalador del creixament dels municipis costaners al llarg del Baix i Alt EmpordĆ . A lāEscala, com altres indrets, durant els anys del Desarollismo del 60ās i 70ās es va manifestar en lāaparició de moltes urbanitzacions, la gran majoria sense el control de mercat dels terrenys.
Entre les platges de Montgó i Riells sāextĆ©n tota una zona dāhabitages unifamiliars aĆÆllats de parcel.les petites dāuna planta dāalƧada. Configuren una zona tĆpicament dispersa i difusa de les poblacions costaneres. La nostre proposta recau en enderrocar dos volums annexats lateralment i endreƧar les faƧanes.Ā
Amb una proposta simple dāobertures amb uns porticons de fusta tenyida de tonalitat fosca sāunificarĆ tot lāhabitatge. A lāinterior una nova escala mĆ©s funcional i lleugera completarĆ lāactuació a la cuina nova. Lāacondicionament exterior es completarĆ amb un nou paviment homogeni amb una piscina posterior.

Habitatge unifamiliar aĆÆllat
-
St. JuliĆ de Ramis (Girona)
SuperfĆcie: 285 m²
Projecte:Ā Privat
PEM:Ā 225.000 ā¬
Tipus: Obra nova
Any:Ā 2009


Lāhabitatge sāubica en una zona residencial allunyada del centre del municipi quedant separada del municipi per una via de gran capacitat. Parcel.la de forma regular amb dos costats oberts a un vial adjacent. La zona de lleure sāobre a la bona orientació deixant la part posterior per les faƧanes nord i oest.

El programa queda definit per una planta soterrani dāaparcament amb una planta dāaccĆ©s amb tot el programa de dia i nit. A la planta primera o altell i comunicat per un accĆ©s generós amb alƧada sāubicarĆ una zona dāestudi / sala complementaria. Lāaspecte compacte, allargassat i paral.lel al vial es complementarĆ amb un volum puntual de major alƧada marcant el seu accĆ©s.
Aquest es realitza per el mig de lāhabitatge. Parcel.la i habitatge es reparteixen el lĆmits. La part de ponent i sud es distribuirĆ tot el programa de nit. La part est i sud la part de dia. LāaccĆ©s a lāhabitatge definirĆ les dues parts. La sala dāestar, cuina i peces auxiliars quedaran definides per una porxada mĆ©s generosa. La part dels dormitoris amb el seu pas-distribuĆÆdor es relacionarĆ amb lāexterior atravĆ©s de buits mĆ©s definits.

Conjunt de 4 habitatges
-
CornellĆ del Terri (Girona)
SuperfĆcie: 234 m²
Projecte:Ā Privat
PEM:Ā 230.000 ā¬
Tipus: Obra nova
Any:Ā 2007


CornellĆ del Terri Ć©s un municipi limĆtrofe amb Banyoles. Dins de la plana del riu Terri, Ć©s un dels municipis de la comarca amb mĆ©s extensió de terreny. La seva població es dedica al sector agrĆcola-ramader i al conjunt dāempreses del mateix sector.

FruĆÆt de la seva proximitat amb Banyoles el poble ha tingut un creixement bastant important sobretot en la construcció dāhabitatge unifamiliars per tal que sāha convertit en la āciutat dormitoriā de Banyoles.
La promoció intenta ocupar la menor superfĆcie possible de les parcel.les per tal dāaprofitar al mĆ xim lāespai lliure. Amb una configuració de planta baixa amb el programa de dia i el nit en planta primera els quatre habitatge es presenten iguals però orientats segons la bona orientació. Amb un llenguatge sobri però sense deslligar-se de lāĆ mbient rural que es respira intenta vincular-se amb el municipi:Ā colors terrossos i verds, bigues vistes, porticons de lames de fusta.

Habitatge unifamiliar aĆÆllat
-
Sils (Girona)
SuperfĆcie: 155 m²
Projecte:Ā Privat
PEM:Ā 159.000 ā¬
Tipus: Obra nova
Any:Ā 2005


La Urbanització Les comes sāextĆ©n en la part nord del nucli poblacional de Vallcanera (Sils). Inicialment descrita com a Urbanització amb dĆØficits urbanistics, any rera any, lāAjuntament i la Junta de Compensació han anat arreglant les mancances dāinfraestructures, legals i de planejament.

El nostre solar Ć©s allargat, disposant-se orientat est-oest amb pendent cap lāoest. La pendent mitjana supera el 10% en el segons terƧ del solar.Ā Per tant la nostre edificació es posiciona en la plataforma mĆ©s elevada possible i mĆ©s aprop dāon es produeix el canvi de pendent. La part inferior de lāhabitatge es destinarĆ a garatge.
La planta accĆ©s queda dividida per lāaccĆ©s lateral que a modus de passera sāinserta dins lāhabitatge. La part de dia, orientada a lāoest i gaudint de la part elevada del balcó es presenta a la dreta de lāaccĆ©s. Cuina integrada a la sala dāestar amb un petit bany al hall completen la distribució. A la part esquerra els dormitoris i els seus banys es reparteixen tot acompanyant lāescala.
Les faƧanes són senzilles amb obertures generoses a oest juntament amb un porxo per protecció del clima. A les faƧanes nord i sud, les obertures són petites per tenir un bon control tĆ©rmic. La part mĆ©s pĆŗblica les faƧanes són dāobra cerĆ mica vista i les de la part posterior al jardi tenen un tractament de morter de ciment i pintat.
