Reforma coberta museu de lāEmpordĆ
-
Figueres (Girona)
SuperfĆcie: 67 m²
Projecte:Ā Aj. Figueres
PEM:Ā 33.500 ā¬
Tipus: Ampliació ā reforma
Any:Ā 2023

Lāedifici resta emplaƧat al final de rambla de Figueres, al lĆmit amb el carrer Montoriol, a la part mĆ©s baixa de la Rambla. Ā Projectat per lāarquitecte A.Bonaterra i inaugurat lāany 1971 en el mateix lloc on hi havia un edifici modernista de lāarquitecte figuerenc Josep Azemar. Amb una posició discreta, en cantonada la seva faƧana Ć©s neo-racionalista. De lĆnies simples i ordenades sāofereix a la Rambla. La seva particularitat són els relleus efectuats per lāartista F. MarĆ©s.
Com la majoria del museus, la funció i lāĆŗs esdevenen dos factor determinants. Malauradament la majorarioa dāells no estaven pensats per el canvi tant vertiginós del nostres temps. El seu funcionament ha vegades Ć©s precari, recolzats sobretot per la poca inciativa pĆŗblica i per la poca atracció privada que tenen aquest tipus de museus.

Ampliació de gimnà s
-
Banyoles (Girona)
SuperfĆcie: 420 m²
Projecte:Ā Privat
PEM:Ā 900.321 ā¬
Tipus: Ampliació ā reforma
Any:Ā 2023


Un supermercat i un gimnĆ s apareixen en el lĆmit de sól urbĆ de Banyoles com a construccions dāĆŗs pĆŗblic. El primer de nova creació i el segon amb una ampliació efectuada fa 5 anys dotant-lo de noves aules iĀ de un nou accĆ©s.
El projecte ha de donar resposta a una nova fase per dotar a la infraestructura dāun nou servei de restauració. LāaccĆ©s al restaurant serĆ clau per tal que es pogui fer servir en franges horĆ ries diferents que el gimnĆ s.Ā
Per tant el restaurant tindrĆ un carĆ cter propi amb dos accessos: un per els usuaris del centre i lāaltre per la gent del municipi. La nostre proposta es basarĆ doncs en un lloc de trobada com si a lāexterior es tractĆ©s, per tant es projectaran uns ānuclis dāintercanviā que seran lāĆ nima de projecte. Aquest nuclis contindran una taula, unes cadires i un banc de gran dimensions.
SāacompanyarĆ de llum pròpia a travĆ©s dāuna arquitectura tesada a modus de āparasolā per la seva reflexió. De material de fusta i recobert de gespa es vol induir cap a un aspecte totalment exterior creant illes enjardinades.
Al fons de la zona dāactuació es realitzaran els espais privats de cuina i preparació amb connexió directe a lāexterior. A un costat i col.lindant amb lāespai dāaccĆ©s existent es realitzarĆ el paquet de les zones de serveis.

Piscina per una masia de turisme rural
-
ArbĆŗcies (Girona)
SuperfĆcie: 420 m²
Projecte:Ā Privat
PEM:Ā 900.321 ā¬
Tipus: Ampliació ā reforma
Any:Ā 2023


El projecte consisteix en la construcció dāuna piscina i enderroc de coberts en un habitatge unifamiliar aĆÆllat, amb una superfĆcie aproximada de 62 m2.
Aprofitant lāespai lliure de la parcelĀ·la, la piscina sāubica a la banda posterior de lāhabitatge, que consisteix en una masia dāuns 225 m2.
El projecte inclou la reordenació de la zona exterior, que integra la piscina amb lāhabitatge actual i alhora donarĆ qualitat a lāespai que lāenvolta. LāaccĆ©s a la piscina sāefectua des del mateix espai lliure de la masia. Aquesta reordenació es duu a terme mitjanƧant elements dāenjardinament amb arbres dāespĆØcies autòctones, plantes i mobiliari exterior atĆØs sāinclou dins el PN del Montseny on les restriccions per construir són molt severes.

Piscina en habitatge unifamiliar
-
Girona
SuperfĆcie: 79 m²
Projecte:Ā Privat
PEM:Ā 58.000 ā¬
Tipus: Obra nova
Any:Ā 2021


El projecte consisteix en la construcció dāuna piscina al jardĆ dāun habitatge unifamiliar al barri de Montjuic de Girona. La piscina, de tamany petit-mitjĆ es vol aprofitar per donar relació al jardĆ i a lāespai de lleure de la parcel.la. La piscina se situa al jardĆ lateral del solar de lāedifici, el qual es caracteritza per tenir un fort pendent, dāaproximadament un 30%. Per a la Ā construcció de la piscina sāhan creat una sĆØrie de terrasses, que alhora conformen diferents espais exteriors que defineixen el jardĆ i lāespai al voltant de la piscina.
La geometria de la piscina Ć©s eminentment rectangular, i lāaccĆ©s sāefectua des de dāun dels seus vĆØrtexs. Per vestir la zona on sāubica la piscina sāhi plantegen una sĆØrie dāelements que conformen el conjunt de lāespai exterior de lāhabitatge. Dāuna banda es valoritza la terrassa lateral de lāhabitatge, a nivell de lāaccĆ©s principal, quedant elevada des de la piscina, i per altra banda es genera un espai pavimentat al voltant de la piscina.
El repte del projecte resideix principalment en lāadaptació del conjunt de lāactuació amb el fort desnivell, i lāestricta normativa a quĆØ sāenfronta lāactuació.

Piscina
-
CelrĆ (Girona)
SuperfĆcie: 20 m²
Projecte:Ā Privat
PEM:Ā 35.000 ā¬
Tipus: Obra nova
Any:Ā 2020

Construcció dāuna piscina en un habitatge unifamiliar aĆÆllat.
La piscina Ć©s de planta rectangular i de dimensions reduĆÆdes. Ubicat en un jardĆ de mesures domĆØstiques, per tant lāempremta de la piscina no caldria presentar-se com a protagonista. La piscina serĆ envoltada per una petita superfĆcie pavimentada que tĆ© continuĆÆtat en un dels costats dela terrassa.
A la part amb menys profunditat es disposa dāunes escales per accedir de maneraĀ còmode i normal. La diferenciació es visualitza a travĆ©s dāuns dels laterals curts de la piscina. Sāha conservat un petit mur de pedra que separa la zona enjardinada de la zona dāaccĆ©s rodat a lāhabitatge. Aquest mur es presenta en tota la seva alƧada, des de la part exterior fins al fons de la piscina i esdevĆ© el mĆ xim protagonista.

Piscina residencial privat
-
CerviĆ (Girona)
SuperfĆcie: 58 m²
Projecte:Ā Privat
PEM:Ā 59.000 ā¬
Tipus: Ampliació ā reforma
Any:Ā 2020


Construcció dāuna piscina i enderroc de coberts en un habitatge unifamiliar aĆÆllat.
GrĆ cies a un procĆ©s dāenderroc apareix un espai lliure entremig de les edificacions, resultant Ćŗnicament accessible per la part sud. Entre la part nord i la sud existeix un desnivell, el qual es configurarĆ amb dos nivells. El mĆ©s superior, dāuns dos metres dāamplada, fa de pòdium superior tenint una visió Ć mplia de lāespai.
A la cota inferior es disposa dāuna Ć mplia terrassa en la qual es distribuiran les diferents funcions, contemplant en una posició central però al lateral de lāespai la piscina.
LāaccĆ©s a la zona de la terrassa sāefectuĆ a travĆ©s dāunes escales que sāacompanyen dāun mur de pedra que envolta tot el pati.
La piscina sāubicarĆ en un costat del pati, en concret al lateral oest, essent aquesta la zona mĆ©s assolellada. Lāacabat de la piscina disposarĆ de la mateixa cota que la terrassa per tal de permetre gaudir dāun espai de lleure.

Espai dāesbarjo en Escola Municipal
-
Girona (Girona)
SuperfĆcie: 350 m²
Projecte:Ā EP. TarlĆ
PEM:Ā 54.000
Any:Ā 2016

La manca de diferents espais per diferents edats educatives varen portar a la direcció del centre a proposar diferentes zones dāesplai. MĆ©s control i a la vegada menys interferĆØncies dāaltres edats.
La divisió de la zona dāesbarjo amb diferents activitats es va traduir amb activitats lĆŗdico-esportives i dāaprenentatge. Aquestes estarien associades a una nova pavimentació amb diferents textures: zones de grava, de sauló, de gespa i de goma compartiran espai amb les existents de terratzo i cerĆ mics.
TambĆ© hi ha un espai cobert per a poder gaudir de lāexterior en casos de condicions meteorològiques adverses.
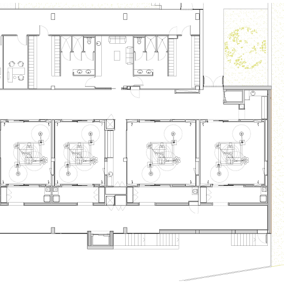
Ampliació de la zona Quirúrgica i Estèril del Parc Hospitalari
-
Salt (Girona)
SuperfĆcie: 425 m²
Projecte:Ā Generalitat de Cat
PEM:Ā 458.000 ā¬
Tipus: Reforma ā ampliació
Any:Ā 2010


Una de les grans presmisses que es va donar al projecte de lāHospital Sta Caterina de Salt fou que es poguĆ©s modificar i ampliar dāacord amb les demandes que oferissin els diferents departaments socio-sanitaris per tal dāesser dins una Parc Hospitalari.
La funcionalitat de lāedifici i la seva posició dins el parc Ć©s immillorable. El seu esquema en dos direccions de espais servidors i servits a travĆ©s de patis intercomunicats possibilitat que amb un espai generós de terreny que es disposa la seves ampliacions siguin molt fĆ cils. Per nosaltres fou molt fĆ cil pensar en una ampliació del bloc quirĆŗrgic i del bloc estĆØril.Ā

Els dos blocs, col.lindants i obligats a treballar plegats sāamplien atravĆ©s de realitzar una altre crugia dins lāesquema de lāhospital. Apareixeran dos recorreguts nous. Un dāhoritzontal que unirĆ per la planta soterrani ambdós blocs, i un dāexterior a modus dāascensor per unir tots els recorreguts horitzontal, pensant al mateix temps en una reconversió de la segona planta en un futur.
Les faƧanes del bloc nou voldran ser una prolongació de les existents i sense diferenciar-se. Per tant, el mateix ritme de les faƧanes de formigó serĆ lāelement principal aixĆ com la seva disposició dels tancaments de vidre. Ćnicament la faƧana de lāentrada al servei dāurgĆØncies per tal de diferenciar-se es conclou amb un tractament de fusta igual que el tractament de fusta de la faƧana nord de tot lāhospital.

Reforma de lāĆrea dāUrgencies del Hospital Sta. Caterina
-
Salt (Girona)
SuperfĆcie: 225 m²
Projecte:Ā Generalitat de Cat.
PEM:Ā 310.000 ā¬
Tipus: Ampliació ā reforma
Any:Ā 2009


La utilitat dāuna edificació de primer ordre com Ć©s un Hospital no dura mĆ©s de cinquanta anys. Si hom pensa en la velocitat que avanƧa la societat no Ć©s dāextranyar que són unes edificacions en constant canvis. Uns canvis associats majoritĆ riament a les seves instal.lacions i per tant, directament, queden afectades funcionalment.
Per tant la seves distribucions i zonificacions queden modificades al mateix temps que sāavanƧa tecnològicament. La naturalessa de la reforma implica saber gestionar un futur inmediat per tal que la propera intervenció es pogui realitzar en la mateixa eficiĆØncia. En el nostre cas es tractava de reconvertir les sales grosses dāurgencies en espais individualitzats i controlats.

Els acabats dels paraments interiors estaven definits horitzontal i verticalment per els existents. Per tant, hom havia de treballar només en la seva disposició en el pla fent que la propera intervenció tingués un llenguatge existent coherent i funcional.

Centre infantil i primĆ ria
-
Vall-Llobrega (Girona)
SuperfĆcie: 1250 m²
Projecte:Ā Generalitat de Cat
PEM:Ā 1.390.000 ā¬
Tipus: Obra nova
Any:Ā 2008


El Terme municipal de Vall-llobrega esta situat a segona linea de mar, entre els municpis de Palamós i Palafrugell i al peu de la part est de les Gavarres. La carretera comarcal C-31fa de barrera entre el municipi i lāespai natural de la Platja del Castell, Illes Formigues, Foradada i Estreta com les mĆ©s singulars. El municpi es generĆ a partir del conreu agrĆcola del XVII i a partir del S.XXI, arrant de lāexpansió econòmica vĆ ren crĆØixer els poligons industrials i residencials que esdevingueren vitals per el seu creixament de 200 a 1000 habitants.
La parcel.la es presenta a lāoest del municipi, col.lindant amb un espai a modus de plaƧa, verda i lliure com a centre neurĆ lgic del municipi. Lāedifici es posiciona alineada al vial principal amb tres volums que es van retranquejant i tenir mĆ©s espai davant espais importants, com són pati del menjador, espai entrada del centre i pati per el mĆ©s menuts.
El programa es divideix en infantil i primĆ ria. La part mĆ©s al nord i a tocar lāescola infantil existent sāubicarĆ la part de primĆ ria.
Al mig del centre sāsi distribuirĆ les parts admninistratives seguides de la part de la zona de secundĆ ria. La part de menjador i pati irĆ unit amb una altre cos tambĆ© retranquejat. El pati dāesbarjo i de lleure resta en una cota inferior i conectada a una futura ampliació per el gimnĆ s.
El centre es construirà amb façana de bloc de morter de color blanc i remats de forjats, voladissos i ampits de formigo prefabricat blanc. Les obertures seran generoses segons les prescripcions del departament amb gelosies cerà miques a la part nord i lames verticals a les façanes est i oest.

Centre de salut mental
-
GironĆØs i Pla de l'Estany (Girona)
SuperfĆcie: 1650 m²
Projecte:Ā Generalitat de Cat
PEM:Ā 265.000 ā¬
Tipus: Reforma ā ampliació
Any:Ā 2008


Es va establir que el centre havia de ser un centre neurĆ lgic dāatenció primĆ ria per la saut mental. El seu emplaƧament tambĆ© havia de respondre a una necessitat de tamany que fos suficient per tenir una trentena de box per realitzar aquesta atenció. Un edifici absolet al mig de Girona va reunir aquestes condicions. La reforma va consistir en lāacondicionament de lāedifici per el servei dāatenció primĆ ria de salut mental.

ProgramĆ ticament es va dividir en dos parts per diferenciar la salut mental adulta i la infantil. Els diferentĀ boxs, sales complementĆ ries de formació, de cures i dāespera varen ser els requeriments per part de lāadministració. Una estructura existent caòtica amb una alƧada molt reduĆÆda varen ser uns condicionants de molt pes per el resultat.

Paviments i sostres continus que harmonitzen el conjunt edificatori i unes divisions que possibiliten la interacció visual entre sales són les solucions que es van practicar en un recinte complex i difĆcil.

CAP
-
VilobĆ (Girona)
SuperfĆcie: 458 m²
Projecte:Ā Generalitat Cat
PEM:Ā 695.000 ā¬
Tipus: Obra nova
Any:Ā 2006


Equipament de petita dimensió per tal de solucionar els problemes derivats de la massificació al centre. Col.locat a les afores del municipi, el solar es presenta col.lindant a altres equipaments.
El solar tĆ© una geometria regular i compacteĀ amb lleugera pendent a nord. LāaccĆ©s cal realitzar-lo per la banda sud atĆ©s la zona dāaparcament queda distribuĆÆda en aquest espai.
Lāedifici es presentarĆ amb un accĆ©s frontal i amb tres franges horitzontals per diferents usos. La central, serĆ una zona de grans dimensions on com a sala dāespera farĆ dāunió a la resta de sales laterals. Aquestes seran dāatenció al pacient juntament amb als despatxos.Ā La tercera franja serĆ destinada a un pati interior per tal de ventilar, control de vistes i instal.lacions.
Les faƧanes seran neutres, de color blanc i amb obertures de grans dimensions. La petita dimensió de les peces dāobra cerĆ mica de la faƧana es disposarĆ per aconseguir lāescala mĆ©s humana a un equipament.

Centre cĆvic
-
Lloret de Mar (Girona)
SuperfĆcie: 495 m²
Projecte:Ā Aj. Lloret de Mar
PEM:Ā 495.000 ā¬
Tipus: Obra nova
Any:Ā 2005


Situada dins lāeixample suburbĆ de part sud de Lloret de mar existeixen varies places que no tenen cap Ćŗs en comĆŗ i no estan urbanitzades ni conectades al seu entorn. Lā Ajuntament vol realitzar un edifici que serveixi de fil conductor per atraure la gent del barri mĆ©s propera a lāedifici i gaudir de tots els serveis que es realitzin i tambĆ© perquĆØ contingui tot allò que lāespai pĆŗblic necessiti per realitzar qualssevol event com pogui ser suport logistic a concerts, magatzem, instal.lacions elĆØctriques, instal.lacions de reciclatge..etc.

El nou centre civic que es promourĆ estĆ pensat per ser eficient. Pensat en termes dāeficiĆØncia energĆ©tica serĆ autosuficient amb una estructura de portics de fusta i un doblat de pilars de fusta. El seu tancament es realitzarĆ amb panells tricapa de fusta aportant estabilitat i aillament. Una gran part del centre civic disposarĆ dā obertures que tindran el mateix ritme que les faƧanes i seran generoses. Amb un sistema de replagament serĆ fĆ cilment usable tot lāespai interior com una prolongació de lāexterior.

Lāenorma voladĆs produĆÆt per les bigues de fusta facilitarĆ aquesta interacció entre lāinterior i lāexterior.
La forma en cunya de lāedifici pretĆ©n donar ĆØmfase a lāentrada del centre civic com a reclam per els veĆÆns.
Amb diferents mesures i formes però amb el mateix esperit constructiu es vol implantar al llarg de varis barris del municipi.
